Vollzug des Baugesetzbuches (BauGB);
Bebauungsplan "Hundsrück BA 1 - GE Rohde & Schwarz";
Änderung mit Deckblatt Nr. 11 Bekanntmachung des Satzungsbeschlusses gemäß § 10 Abs. 3 BauGB
Der Marktgemeinderat des Markt Teisnach hat mit Beschluss vom 02.02.2023 die Änderung des Bebauungsplans Hundsrück BA 1 - GE Rohde & Schwarz"mit Deckblatt Nr. 11 in der Fassung vom 02.02.2023 als Satzung beschlossen. Dieser Beschluss wird hiermit gemäß § 10 Abs. 3 (BauGB) ortsüblich bekannt gemacht. Mit dieser Bekanntmachung tritt der Bebauungsplan in Kraft.
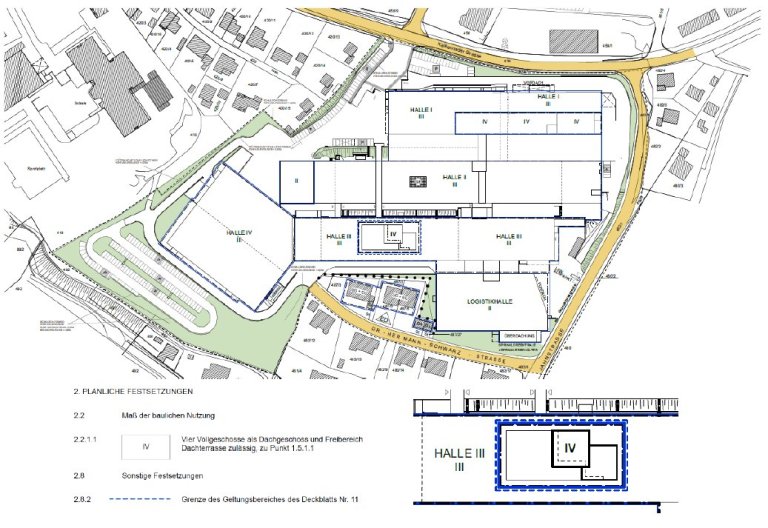
Mit dem Deckblatt 11 soll der Umbau der Betriebskantine des Werkes Teisnach der Firma Rohde & Schwarz ermöglicht werden. Es ist außerdem beabsichtigt, einen Teil des Betriebsrestaurants auf das Dach der Halle 3 auszulagern. Zusätzlich soll eine Dachterrasse zur Bewirtung der Gäste entstehen. Der räumliche Geltungsbereich des Bebauungsplandeckblattes ergibt sich aus dem nachfolgenden Lageplanausschnitt, der Bestandteil dieser Bekanntmachung ist.

Jedermann kann das Bebauungsplandeckblatt, bestehend aus dem Lageplan M 1:1.000 mit den textlichen und planlichen Festsetzungen und dem schalltechnische Bericht Nr. S2202031, sowie die zusammenfassende Erklärung über die Art und Weise, wie Umweltbelange sowie die Ergebnisse der Öffentlichkeits- und Behördenbeteiligung in dem Bebauungsplan berücksichtigt wurden, und aus welchen Gründen der Plan nach Abwägung mit den geprüften, in Betracht kommenden anderweitigen Planungsmöglichkeiten gewählt wurde, im Rathaus des Marktes Teisnach (Zimmer Nr. 7, Prälat-Mayer-Platz 5, 94244 Teisnach) während der allgemeinen Dienstzeiten einsehen und über deren Inhalt Auskunft verlangen.
Allgemeine Dienstzeiten:
Montag bis Freitag: 08.00 Uhr bis 12.00 Uhr
Montag bis Mittwoch: 13.00 Uhr bis 16.00 Uhr
Donnerstag: 13.00 Uhr bis 17.00 Uhr
Auf die Voraussetzungen für die Geltendmachung der Verletzung von Verfahrens- und Form-vorschriften und von Mängeln der Abwägung sowie die Rechtsfolgen des § 215 Abs. 1 BauGB wird hingewiesen.
Unbeachtlich werden demnach
1. eine nach § 214 Abs. 1 Satz 1 Nr. 1 bis 3 BauGB beachtliche Verletzung der dortbezeichneten Verfahrens- und Formvorschriften,
2. eine unter Berücksichtigung des § 214 Abs. 2 BauGB beachtliche Verletzung derVorschriften über das Verhältnis des Bebauungsplans und des Flächennutzungsplans,
3. nach § 214 Abs. 3 Satz 2 BauGB beachtliche Mängel des Abwägungsvorgangs und
4.nach § 214 Abs. 2a im beschleunigten Verfahren beachtliche Fehler
wenn sie nicht innerhalb eines Jahres seit Bekanntmachung des Bebauungsplans schriftlich gegenüber dem Markt Teisnach geltend gemacht worden sind; der Sachverhalt, der die Verletzung oder den Mangel begründen soll, ist darzulegen. Außerdem wird auf die Vorschriften des § 44 Abs. 3 Satz 1 und 2 sowie Abs. 4 BauGB hingewiesen. Danach erlöschen Entschädigungsansprüche für nach den §§ 39 bis 42 BauGB eingetretene Vermögensnachteile, wenn nicht innerhalb von drei Jahren nach Ablauf des Kalenderjahres, in dem die Vermögensnachteile eingetreten sind, die Fälligkeit des Anspruches herbeigeführt wird.








