Zum Inhalt, zur Navigation oder zur Startseite springen.

Markt Teisnach | Online: https://www.teisnach.de/

Markt Teisnach

  • Rathaus & Bürger
    • Bürgermeister
    • Marktgemeinderat
      • Steckbriefe
      • Ausschüsse
    • Mitarbeiter
      • Steckbriefe
      • Sachgebiete
      • Aufgaben
    • Gemeindliche Einrichtungen
    • Stellenangebote
    • Dienste im Rathaus
      • BayernPortal
      • Bürger-Service-Portal
      • Formulare
      • Standesamt/Heirat
      • Wasserzähler-Ablesung
      • Fundbüro
      • Teisnachtal Card
    • Satzungen und Verordnungen
    • Steuern, Gebühren, Beiträge
      • Hundesteuer
    • Bekanntmachungen
      • Bauleitplanung
      • Sonstige Bekanntmachungen
    • Wahlen
    • ILE Teisnachtal
  • Leben & Wohnen
    • Interaktiver Ortsplan
      • Stadtplan.de
    • Öffentliche Einrichtungen
      • Gemeindliche Feuerwehren
      • Friedhof
      • Bücherei
      • Mehrzweckhalle
    • Soziale Einrichtungen
    • Religionsgemeinschaften
    • Vereine
      • Terminkalender
    • Schule
    • Versorgung
    • Entsorgung
      • Abfallentsorgung
      • Abwasser
      • Kaminkehrer
    • Ärzte & Apotheken
    • Senioren
    • Baugebiete
      • Teisnach
      • Arnetsried
  • Wissenswertes
    • Geografische Lage
    • Interaktiver Ortsplan
    • Zahlen und Daten
    • Geschichte
    • Wappen
    • Patenschaften/Partnerschaften
    • Notrufe & Notdienste
    • Öffentlicher Nahverkehr
    • Ehrenbürger & Bürgermeister
    • Wochenmarkt
  • Wirtschaft
    • Branchenverzeichnis
    • Gewerbegebiete
    • Bauleitpläne
    • Technologiecampus
    • OZB Teisnach GmbH
    • Bekanntmachungen
    • Breitbandausbau
      • Verfahren I bis Ende 2018
      • Verfahren II ab 2019
      • Verfahren III ab 2021
    • Ausschreibungen
  • Freizeit & Kultur
    • Veranstaltungen
    • Anreise
    • Wanderwege
    • Essen & Trinken
    • Bürgerreise
  • Veranstaltungen
  • Essen & Trinken
  • Tourismus
    • Unterkunftssuche
    • Vermieter
      • Gasthöfe - Pensionen - Hotels
      • Ferienwohnungen
    • Wanderwege
Headerbild comp_18_Brauchtum.jpgHeaderbild comp_20_Italienischer-Abend-am-Campus.jpgJuniHeaderbild comp_11_Rathaus-Teisnach.jpgHeaderbild comp_5_Kaikenrieder-Straße.jpgMaiHeaderbild comp_4_Bahnverbindung.jpgHeaderbild comp_8_Technologiecampus1.jpgHeaderbild comp_14_Pfleiderer-Spezialpapiere.jpgSeptember
  • Rathaus & Bürger
    • Bürgermeister
    • Marktgemeinderat
    • Mitarbeiter
    • Gemeindliche Einrichtungen
    • Stellenangebote
    • Dienste im Rathaus
    • Satzungen und Verordnungen
    • Steuern, Gebühren, Beiträge
    • Bekanntmachungen
      • Bauleitplanung
      • Sonstige Bekanntmachungen
    • Wahlen
    • ILE Teisnachtal
  • Leben & Wohnen
  • Wissenswertes
  • Wirtschaft
  • Freizeit & Kultur
  • Veranstaltungen
  • Essen & Trinken
  • Tourismus

Sie sind hier: Markt > Rathaus & Bürger > Bekanntmachungen > Bauleitplanung

Bauleitplanung

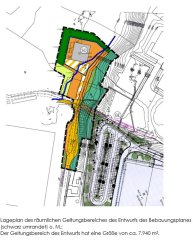
Aufstellung des vorhabenbezogenen Bebauungsplanes SO „Freiflächenphotovoltaikanlage An der B85“

Bekanntmachung zur Aufstellung des vorhabenbezogenen Bebauungsplanes SO „Freiflächenphotovoltaikanlage An der B85“

Die Bekanntmachung zur Ansicht Weiterlesen
Änderung des Flächennutzungsplanes mit einem Deckblatt Nr. 11 SO „Freiflächenphotovoltaikanlage An der B85“

Bekanntmachung zur Änderung des Flächennutzungsplanes mit einem Deckblatt Nr. 11 SO "Freiflächenphotovoltaikanlage An der B85“

Die Bekanntmachung zur Ansicht Weiterlesen
Änderung/Ergänzung des Bebauungsplanes „Brandlwiese“ mit einem Deckblatt Nr. 8 GEe „Brandlwiese“

Bekanntmachung zur Änderung/Ergänzung des Bebauungsplanes „Brandlwiese“ mit einem Deckblatt Nr. 8 GEe „Brandlwiese“

Die Bekanntmachung zur Ansicht Weiterlesen
Änderung des Flächennutzungsplanes mit einem Deckblatt Nr. 10 GE „Brandlwiese“

Bekanntmachung zur Änderung des Flächennutzungsplanes mit einem Deckblatt Nr. 10 GE „Brandlwiese“

Die Bekanntmachung zur Ansicht Weiterlesen

Drucken

Markt Teisnach

Prälat-Mayer-Platz 5
94244 Teisnach

09923 8011-0
09923 8011-22
poststelle@teisnach.de
www.teisnach.de

Öffnungszeiten

Mo. - Fr. 08:00 - 12:00 Uhr
Mo. - Mi. 13:00 - 16:00 Uhr
Do.        13:00 - 17:00 Uhr


 
 

Teisnach entdecken

  • Startseite
  • Kontakt
  • Impressum
  • Datenschutz
  • Inhaltsverzeichnis
Cookie-Einstellungengespeichert

Diese Website nutzt Cookies

Sie können dem Einsatz der Cookies zustimmen oder widersprechen. Mehr Informationen finden Sie in unserer Datenschutzerklärung.

oder konfigurieren:
  • Google Analyitcs
    Google Analyitcs ist ein Webanalysetool, womit wir besser verstehen können, welche Inhalte für Sie interessant sind. Selbstverständlich werden unsere Daten anonymisiert und nicht weitergegeben.
  • Google Maps
    Google Maps ist ein Online-Kartendienst, womit wir Ihnen Standorte auf einer interaktiven Karte anzeigen.